1. Preliminary Stage 2. Tender Stage
3. Technical Design Stage
4. RC Detailing Stage
5. Presentation

1. Preliminary Stage

  • Preliminary meeting between our Revit Manager and your Project Engineer and CAD Manager to establish the project timeline, project standards and information exchange procedures
  • A document issue sheet will be created
  • After receiving survey information and preliminary architecture information our Revit Manager will set up the Structural Revit Model
  • Our Revit Technicians will prepare a preliminary model and share it with your Project Engineer for structural analysis and optimization

Preliminary drawings will also be sent to the Project Engineer for review and marksups

  • The updated Structural Model will be shared and coordinated with the
    Architect
  • The Structural Model should be now at Level of Development LOD 200 – Schematic design (BS1192-2)

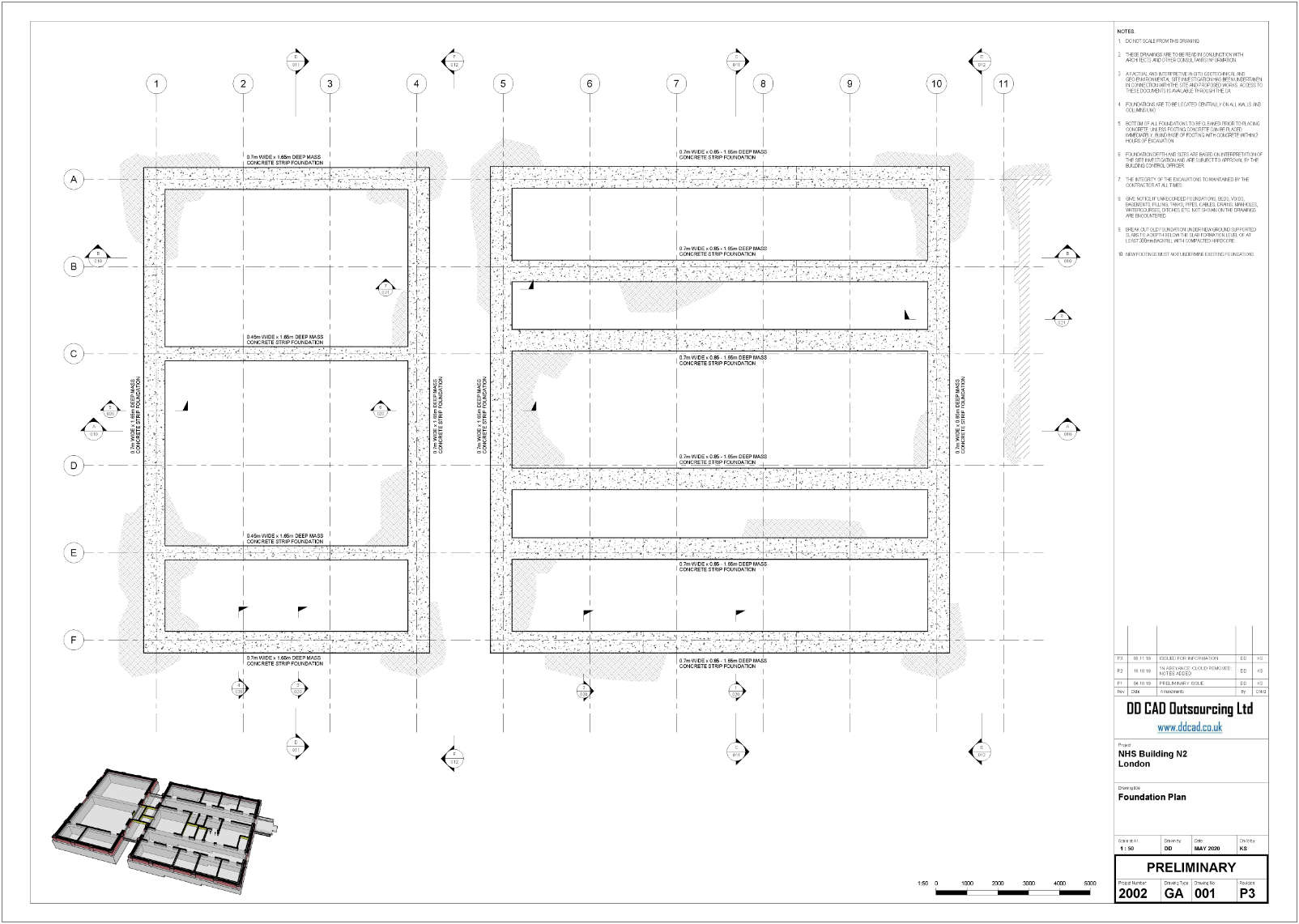
2. Tender Stage

  • The Structural Model continues to be developed in accordance with to the Architect’s updates and Project Engineer’s instructions
  • After a number of reiterations a level of development should be achieved for the Tender Stage where all structural elements are sized up and have structural properties
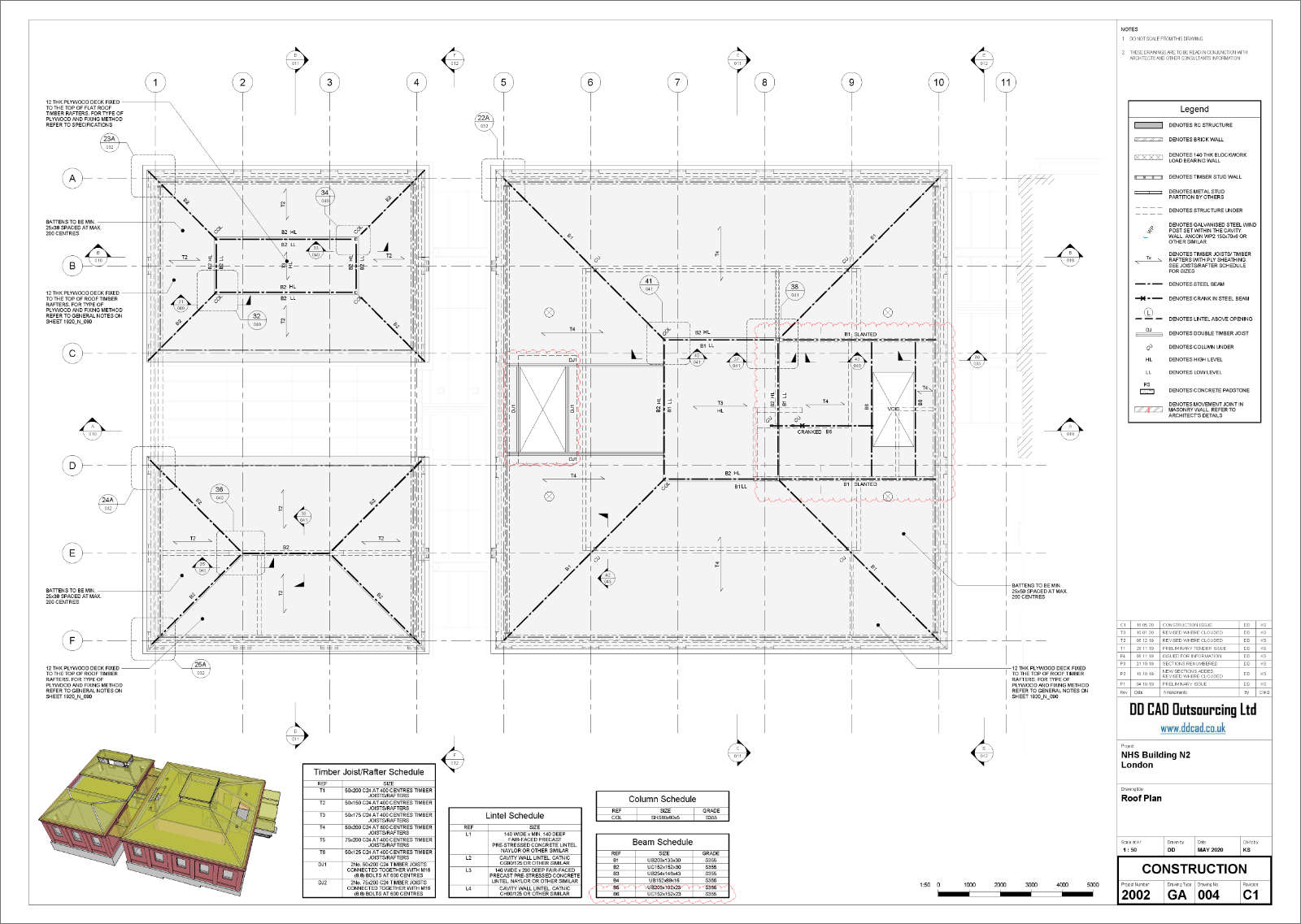
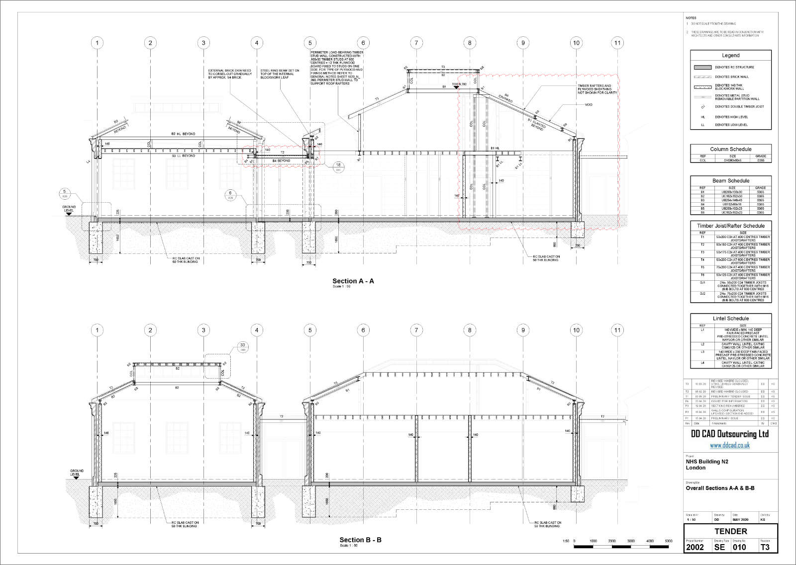
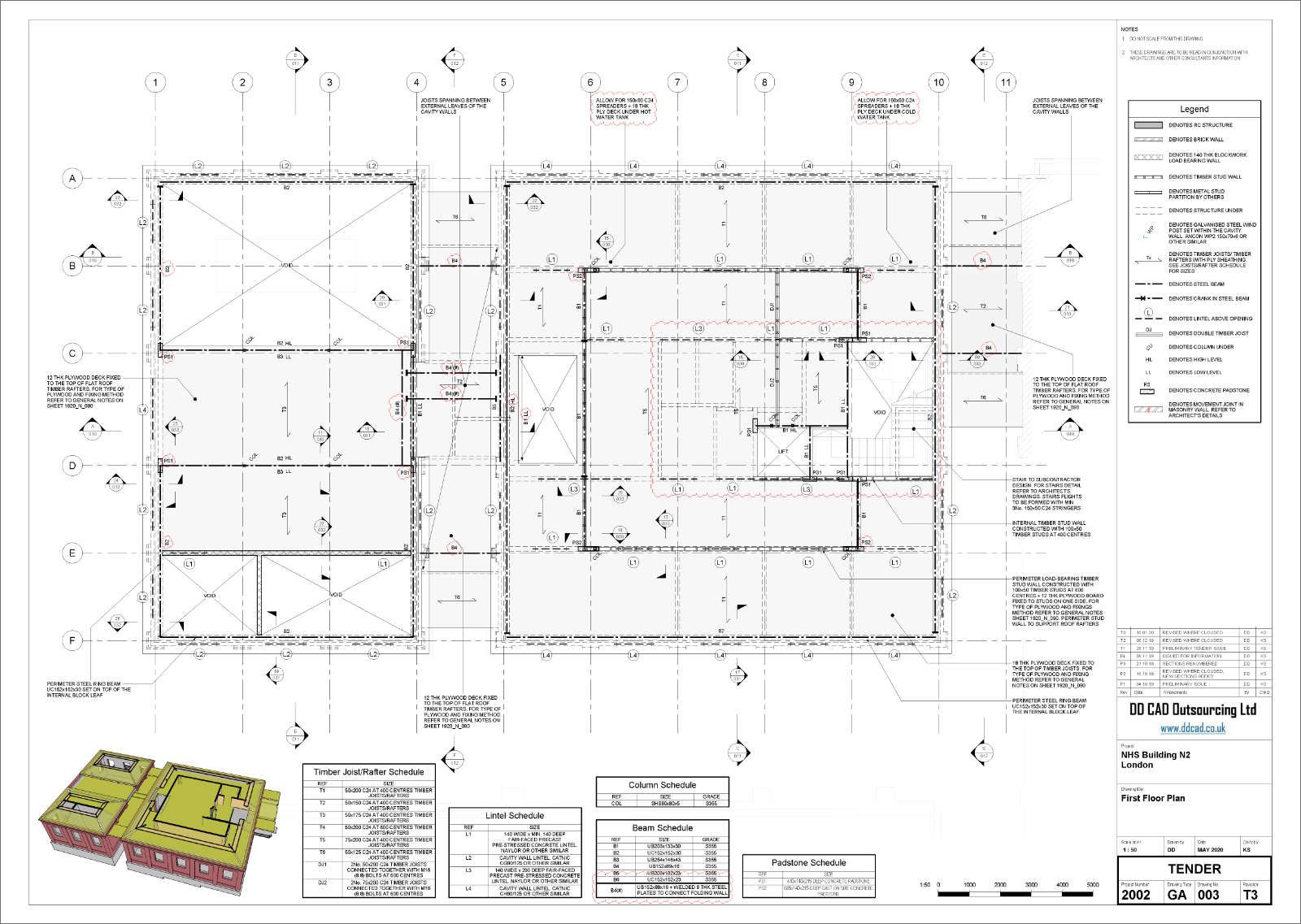
  • A coordinated 3D Structural Model along with a set of general arrangement plans and indicative overall sections will be issued at this point for tender purposes

3. Technical Design Stage

  • The general arrangements drawings / layouts should be confirmed by this stage and a detailed design can begin
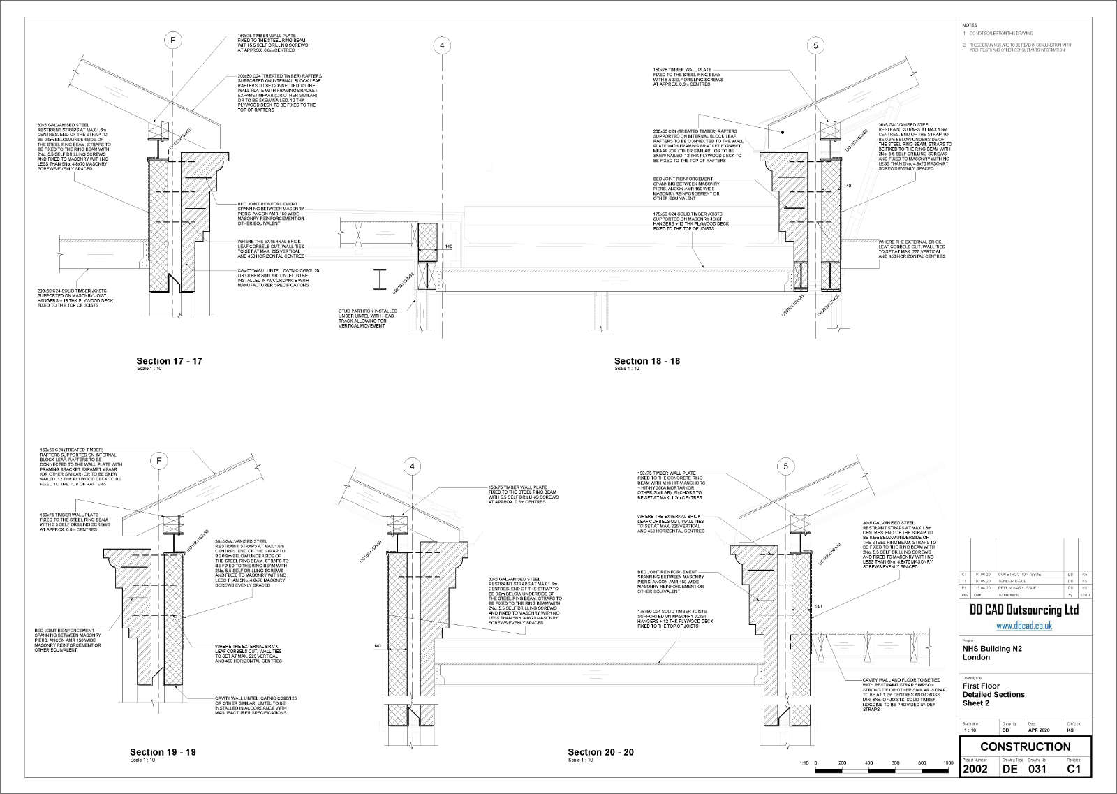
  • Detailed sections and detailed plan views will be created as instructed by the Project Engineer, using the engineer’s sketches, adjusted details from our own database or any adapted older details from your previous projects that you might want to and use
  • We can create custom steel details if needed. However, we do not offer a full steel details and schedules, as this is usually a steel contractor design portion
  • Setting out all structural elements
  • Full coordination with Architect’s and MEP models
  • LOD 300 – Detailed Design

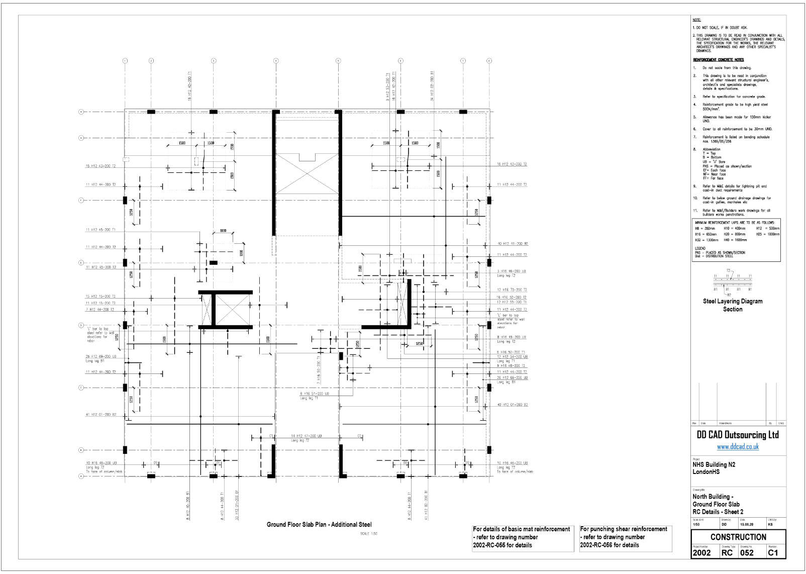
4. RC Detailing Stage

  • Based on Project Engineer’s RC design intent our technicians will parametrically integrate the reinforcement into the 3D Revit Model and generate bar bending schedules using SOFiSTiK software
  • LOD 350 – Construction Documentation

5. Presentation

  • At the end of the project we will prepare presentation renderings and 3D details for your portfolio
1. Preliminary Stage 2. Tender Stage
3. Technical Design Stage
4. RC Detailing Stage
5. Presentation